REFORMA CASA
Gestión integral de la reforma de una casa entre medianeras en el centro de Terrassa.
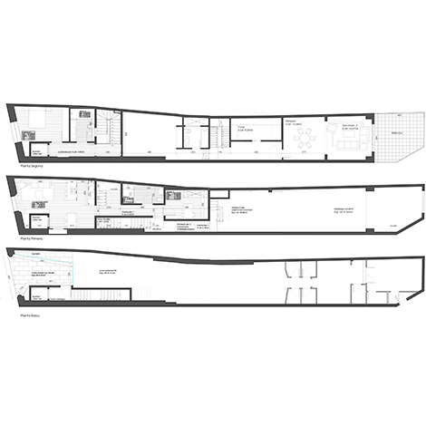
La intervención consiste en modificar la distribución y el acceso a la vivienda para resolver las necesidades de los promotores.
Así, pues, el acceso a la vivienda se traslada desde el interior de la planta hasta la fachada para independizar la planta baja, que se destinará a local comercial, y el resto de la vivienda propiamente dicha. También se instala un ascensor que comunica la planta baja con las dos plantas de la vivienda para que sea accesible.
En la planta primera se ubican las zonas de día de la vivienda que incluye una gran sala de estar-comedor-cocina, un baño y un estudio. En la planta segunda se ubican las zonas de noche que se limitan a una habitación y un baño.
