REFORMA CASA
Proyecto de reforma de una vivienda entre medianeras en Terrassa, Barcelona.
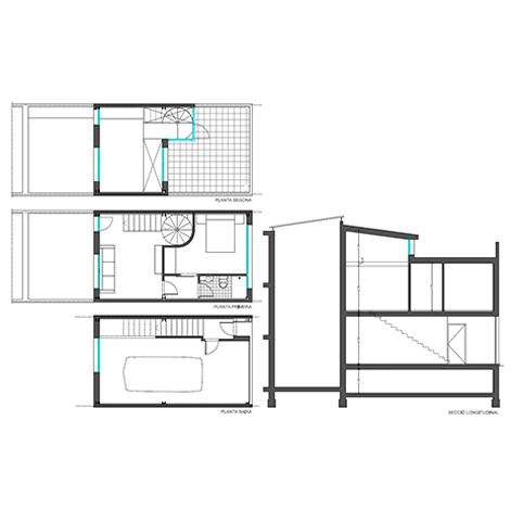
Redactamos el anteproyecto de la reforma de una casa entre medianeras que pretende mejorar la funcionalidad actual de esta mediante la redistribución interior, adaptándola a las necesidades de los promotores/as.
El garaje, en planta baja, se suprime para ubicar el comedor-estar y la cocina, y así liberar un espacio en la planta primera el cual pasa a ser otra habitación. Esto permite separar los usos de día y de noche de la vivienda en diferentes plantas.
El altillo en la planta superior permite crear un espacio de almacenaje y de uso lúdico, así como también generar un acceso a la terraza superior.
