REFORMA CASA
Proyecto de reforma de una vivienda entre medianeras en Barcelona.
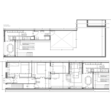
Realizamos el proyecto básico para la reforma de una casa con jardí en planta baja y azotea sobre el cobertizo.
La propuesta presenta diferentes espacios relacionados mediante un pasillo que permite combinar zonas y usos. La relación de estos espacios genera línias de visión más largas y contínuas a través de los distintos espacios, creando una vista más agradable del espacio.
