REFORMA CASA
Proyecto de reforma y rehabilitación de una casa entre medianeras para un escritor en Barcelona.
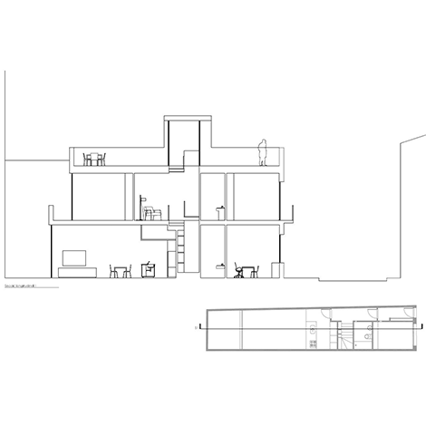
En este caso, el proyecto plantea aprovechar la volumetría del edificio mientras se redistribuyen todos los espacios interiores, a partir de sustituir la escalera actual por una de dos tramos colocada en la parte central de la planta, alrededor de la cual se organizan todas las dependencias.
En planta baja se ubica una habitación-estudio vinculada a la fachada y con acceso independiente del resto de la casa, un baño interior y un único espacio de cocina, estar y comedor que se relaciona, a través de un gran ventanal, con el patio posterior de la casa.
En planta superior se construiran dos habitaciones, un baño y un estudio mientras que la cubierta inclinada se convierte en una terraza transitable.
