CASA ENTRE MEDIANERAS
Proyecto de reforma y rehabilitación de una casa entre medianeras de doble crujía en Terrassa, Barcelona.
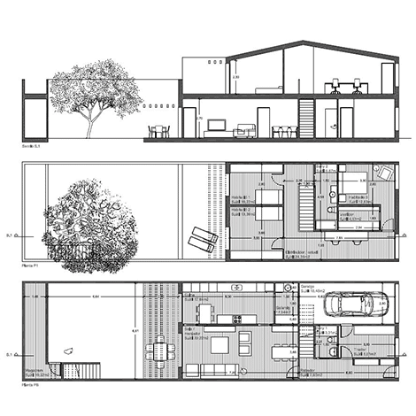
El objetivo del proyecto es mantener la volumetría original de la "casa de cos", que es de doble crujía con un muro intermedio y cubierta inclinada a dos aguas.
Se construye un forjado para la primera planta y se retira la parte posterior para cumplir con la normativa urbanística y crear una nueva terraza.
Se propone relacionar con la calle un garaje y un pequeño local, mientras que se vinculan las zonas de estar al patio posterior que además recibe la mejor orientación del sol. Las habitaciones ocuparan la primera planta.
